ETABS MATE نرم افزار قدرتمند ترسیم نقشه سازه

    صفحه اول | FOUNDA MATE | ETABS MATE |  دانلود  | فعالسازی نرم افزار |  اخبار  | نظر کاربران | مقالات | دیگر نرم افزارها | پشتیبانی | جستجو | تماس با ما | English

 

Download ETABS MATE Software

ETABS MATE  Version 1.3.606
Concrete Structure Detailing Software

»» Compatible with ETABS 9, 13, 15, 16, 17, 18, 19, 20, 21, 22

Advanced Detailing Modules of Beam, Column and Shear Wall ««

ETABS MATE نرم افزار قدرتمند ترسیم نقشه سازه


ETABS MATE Awards


ETABS MATE Concrete Structures Detailing Software
Professional software for design and draw reinforcement details of all types of Concrete Structures in a advanced and very user friendly independent graphical interface in according to analysis and design results of all versions of ETABS software.

 

   فهرست مطالب

::  مقدمه‌ای بر نرم افزار ETABS MATE

::  قابلیتها و برتریهای ویژه نرم افزار ETABS MATE

::  دانلود نمونه نقشه های تولید شده و کاتالوگ نرم افزار

::  آشنایی با نحوه کار نرم افزار ETABS MATE

::  تصاویری از قسمتهای مختلف نرم افزار ETABS MATE

::  دانلود نرم افزار Download ETABS MATE

::  برخی سازه های بزرگ و خاص دیتیل شده با نرم افزار

::   قیمت و نحوه خرید Activation Code نرم افزار

::  فرم ثبت نام دریافت Activation Code نرم افزار

::  مشاهده گواهی تائید فنی و Copyright نرم افزار

::  اخبار و تازه های نرم افزار ETABS MATE

::  مشاهده نظرات کاربران Users Comment

ETABS MATE نرم افزار حرفه ای ترسیم نقشه سازه ها بتنی
 

     مهندسانی که در زمینه طراحی سازه‌ فعالیت مینمایند همواره در طراحی جزئیات آرماتوربندی سازه های بتنی و ترسیم نقشه های اجرایی آنها با مشکلات زیادی مواجه هستند چرا که انجام این مراحل، فرآیندی است بسیار زمانگیر و خسته کننده که احتمال بروز خطاهای انسانی نیز بعلت کثرت خروجیها و حالتهای ممکنه، همواره وجود دارد. از طرف دیگر در بسیاری از سازه‌ها انجام این فرایند به دقت و زمان بیشتری احتیاج خواهد داشت چرا که طراحی جزئیات المانهای پروژه میبایست براساس خروجیهای چندین مدل سازه، بطور همزمان انجام پذیرد.
ETABS MATE سازگاری با تمام نسخه های ایتبس
از اینرو ایده ساخت نرم افزاری که در بالاترین سطح تعامل با کاربر بتواند جزئیات آرماتوربندی ساختمانهای بتنی را بصورت خودکار و با بیشترین دقت محاسبه نماید، به مرور شکل گرفت. در نهایت این ایده و نیز تجربیات سالهای متمادی در زمینه‌های  طراحی سازه‌های مختلف و تولید نرم افزارهای تخصصی صنعت ساختمان و نیز برنامه‌های اجزای محدود سازه‌ای، منجر به طراحی نرم افزاری کاملا مستقل، حرفه‌ای، هوشمند و قدرتمند با محیط گرافیکی بسیار منعطف، کاربردی و کاربر پسند بمنظور طراحی جزئیات آرماتوربندی، متره و ترسیم نقشه‌های اجرایی سازه گردید که نتیجه آن پیش روی شما قرار گرفته است.
   اکنون بیش از سیزده سال است که ETABS MATE در کنار مهندسین طراح سازه است و در طی این سالها بصورت مداوم مورد توسعه و گسترش قرار گرفته است بگونه‌ای که در حال حاضر به یکی از قدرتمندترین، سریعترین و هوشمندترین نرم‌افزارهای دیتیلینگ سازه‌های بتنی تبدیل شده است و در بسیاری سازه‌های شاخص و بسیار بزرگ بصورت کاملا موفق بکار گرفته شده است.
   نرم‌افزار ETABS MATE بصورت کاملا حرفه‌ای و مستقل و بدون هیچ محدودیتی در تعداد و نام المانها، نوع سازه، تعداد طبقات و مساحت پروژه با دقت و سرعتی بسیار بالا فرآیند محاسبه جزییات سازه و ترسیم نقشه‌های اجرایی و تولید لیستوفرها را در کسری از ثانیه به انجام میرساند و علاوه بر نمایش جزییات محاسبه شده در محیط گرافیکی و قابل ویرایش خود، نقشه‌های اجرایی بسیار با کیفیتی را بصورت یک فایل با فرمت ترسیمات معمول نرم‌افزار AutoCAD ارائه مینماید.
از ویژگیهای بارز نرم افزار که در حقیقت وجه تمایز آن نیز میباشد، عدم وابستگی به امکانات گرافیکی و ترسیمی نرم افزارهای دیگر میباشد، بدین معنا که محیط گرافیکی نرم افزار، روالهای محاسباتی و موتورهای ترسیمی آن کاملا بدست متخصصان باتجربه گروه مهندسین فراسا طراحی و تولید شده اند. به همین دلیل نرم افزار از یک سو، محیط گرافیکی کاملا مستقل و کاربر پسندی منطبق بر نیازهای کاری کاربرانش را مهیا مینماید و ازسوی دیگر بعلت همین موتورهای ترسیمی منحصر بفرد با ارتباطات درونی، از سرعت فوق العاده بالایی در انجام محاسبات و ترسیم نقشه های اجرایی برخوردار میباشد. قابلیتهای حرفه‌ای و منحصر بفرد نرم افزار از یک سو و محیط گرافیکی جذاب، راحت و کاربرپسند نرم‌افزار با امکان تعامل بسیار بالا با کاربران از سوی دیگر، باعث شده است تا نرم‌افزار هم مورد استفاده و استقبال شرکتهای مشاوره بزرگ و مهندسین پیش کسوت و هم مهندسین جوان، هم در کشور عزیزمان ایران و هم در پهنه وسیعی از کشورهای آسیایی تا آمریکای جنوبی قرار بگیرد و در فرآیند طراحی هزاران پروژه با مقیاسهای کوچک تا متوسط و صدها سازه با مقیاسهای بزرگ تا بسیار بزرگ و پیچیده با متراژهای بالای یکصد هزار متر مربع بصورت کاملا موفق بکار گرفته شود.
    سیاست کلی در طراحی نرم افزار ETABS MATE سادگی، راحتی کاربر و سرعت انجام محاسبات مربوط به طراحی جزئیات میلگرد گذاری سازه میباشد. به این منظور محیط گرافیکی نرم افزار بگونه ای طراحی شده است که کلیه مهندسانی که با نرم افزارهایی مثل ETABS و AutoCAD آشنایی دارند، براحتی بتوانند با ابزارها و محیط گرافیکی نرم افزار ارتباط برقرار نمایند. از این رو کار با نرم افزار بسیار آسان خواهد بود و استفاده‌کنندگان از این نرم افزار در مدت زمان کوتاهی به تبحر لازم دست خواهند یافت و خواهند توانست طراحی جزئیات آرماتوربندی، متره و ترسیم نقشه های اجرایی یک سازه بتنی بزرگ را  با کمترین خطا و بسرعت، تنها در چند دقیقه به اتمام برسانند و ساعتها و روزهای زیادی را ذخیره نمایند. در مورد سازه‌های دارای سیستم دوگانه نیز نرم افزار بصورت خودکار طراحی جزئیات میلگردگذاری و تیپ بندی سازه را بر اساس نتایج طراحی بدست آمده از هر دو یا چند فایل سازه، بصورت خودکار انجام خواهد داد. همچنین کاربران قادر خواهند بود تمامی جزئیات طراحی شده توسط نرم افزار را در محیط گرافیکی نرم افزار مشاهده و یا ویرایش نمایند و سپس نقشه های اجرایی را تنها با یک کلیک و در کسری از ثانیه در قالب ترسیمات معمول نرم افزار AutoCAD ذخیره نمایید.

تصویر نمونه ترسیمات جزئیات ستونها

تصویر نمونه ترسیمات پروفیل طولی تیرها

تصویر نمونه ترسیمات دیوارهای برشی

 برخی از خروجیهای برنامه عبارتند از نقشه‌های سازه شامل پلان تیپ بندی ستونها و دیوارهای برشی، جزئیات آرماتوربندی میلگردهای خمشی، پیچشی و برشی تیرها، جزئیات تیپ بندی ستونها مشتمل بر پروفیل ارتفاعی بهمراه مقاطع عرضی ستونها، جزئیات طراحی دیوارهای برشی شامل پروفیل ارتفاعی و مقاطع عرضی دیوارها، جداول لیستوفر میلگردهای ترسیمی،  لیست مقاطع تیر و ستون و دیوار و نیز گزارش حجم بتن و فولاد مصرفی به تفکیک اعضا، سایز میلگردها و شماره طبقات.
نرم افزار
ETABS MATE موفق به اخذ گواهی تاییده فنی از شورای عالی انفورماتیک کشور با شماره شناسایی 204933 گردیده است و طی گواهی ثبت از مرکز توسعه فناوری اطلاعات و رسانه های دیجیتال وزارت فرهنگ و ارشاد اسلامی با شماره 10/1000 و شماره شناسنامه 032638-04338-8 تحت پوشش قانون "حمایت از حقوق پدیدآورندگان نرم افزارهای رایانه ای" میباشد.


ETABS MATE

قابلیتها و برتریهای ویژه

ETABS MATE   
Concrete Structur
e Detailing Software

::   سرعت بسیار بالا در طراحی جزییات و ترسیم نقشه های سازه.  (زمان ترسیم نقشه برای یک سازه با متراژ ده هزار متر مربع کمتر از یک ثانیه میباشد.)
::  امکان ایمپورت نمودن سازه های بسیار بزرگ و تولید موفق نقشه های اجرایی آنها.
(دهها سازه واقعی با متراژهای بالای یکصد هزار متر مربع و هزاران پروژه کوچک تا متوسط با استفاده از ETABS MATE توسط کاربران نرم افزار بصورت کاملا موفق دیتیلینگ شده است.)
::  سازگاری با تمامی نسخه های
ETABS یعنی
ETABS 21 ،ETABS 20 ،ETABS 19 ،ETABS 18 ،ETABS 17 ،ETABS 16 ،ETABS 15 ،ETABS 9 و ETABS 22.
::  سازگاری با آیین نامه آمریکا ACI318-19 و مبحث نهم مقررات ملی ویرایش پنجم.
::  ترسیم نقشه های اجرایی سازه بصورت بسیار حرفه ای و شکیل با قابلیت ویرایش توسط تمامی نسخه های نرم افزار
AutoCAD.
::  ایمپورت بسیار راحت و بسیار سریع مدل سازه از
ETABS به نرم افزار
ETABS MATE در کسری از ثانیه.
::  امکان استفاده از طیف وسیعی از خروجیهای ایتبز مانند فایلهای
e2k, $et, RTF, TXT, MDB
, ACCDB, XML برای انتقال داده ها به نرم افزار.
::  دارا بودن محیط گرافیکی پیشرفته، زیبا، راحت و بسیار کاربر پسند منطبق بر نیازهای کاری مهندسین محاسب.
::  امکان
Envelop گیری از نتایج طراحی چندین مدل سازه به تعداد نامحدود و بدون هیچگونه محدودیتی در تعداد مدلها.
::  مستقل بودن نرم افزار و عدم  وابستگی آن به نرم‌افزارهای دیگر از قبیل
AutoCAD و یا Tekla.
::  تعامل بسیار آسان و مناسب بین کاربر و قسمتهای مختلف نرم افزار در تمامی مراحل تا تولید نقشه ها.
::  دارا بودن موتورهای ترسیمی داخلی منحصر بفرد بسیار پرسرعت و عدم وابستگی به نرم افزارهای دیگربرای ترسیم نقشه ها.
::  ترسیم نقشه های اجرایی با رعایت تمامی اصول نقشه  کشی حرفه ای که موجب ویرایش بسیار راحت و چاپ حرفه ای نقشه های میگردد
.
::  امکان مشاهده کلیه جزئیات محاسباتی مربوط به تیرها، ستونها و دیوارها بشکلی بسیار راحت روی پلان سازه.
::  امکان انتخاب حالت شکل پذیری متوسط و یا ویژه برای سازه و پیکربندی پارامترهای مربوطه.
::  محاسبه
JOINT SHEAR بصورت اتوماتیک و ارایه گزارش از جزییات محاسباتی آن.
::  محاسبه Ldh یا طول مهاری میلگردهای قلابدار بصورت اتوماتیک و ارایه گزارش از جزییات محاسباتی آن.
::  محاسبه طول آرماتورهای تقویت با دو روش پارامتریک با ضرایب ثابت و نیز روش دقیق براساس یافتن نقطه قطع تئوری و عملی با استفاده از دیاگرامهای فولاد.
::  امکان تشخیص ستونهای پرفشار در حالت شکل پذیری ویژه و اعمال ظوابط مربوطه در محاسبه فولاد عرضی آنها
::  امکان تشخیص تیرهای  پر برش و اعمال ظوابط مربوطه در محاسبه فولاد عرضی آنها
::  امکان مشاهده بارگذاریهای انجام شده روی کفهای سازه در پلان با فرمتی بسیار کاربردی جهت جلوگیری از اشتباهات بارگذاری.
::  امکان مشاهده و ترسیم ریبها در سقفهای تیرچه بلوک و امکان تنظیم پارامترهای مربوطه.
::  امکان ترسیم و نمایش دیاگرامهای فولاد خمشی، برشی، پیچشی و فولاد افزوده تیرها در پلان سازه.
::  امکان محاسبه طول وصله میلگردها در موقعیتهای مختلف با سه روش کاربردی، بصورت خودکار یا براساس ضرایب و یا طولهای تعریف شده بوسیله کاربر.
::  امکان محاسبه جزئیات وزنی آرماتورهای پروژه حجم بتن و نیز ترسیم جداول لیستوفر در کنار نقشه های اجرایی بهمراه
POS گذاری تمامی میلگردها.
::  امکان تولید لیستوفرهای دقیق به تفکیک المانها و همچنین نوع، شکل و سایز میلگرد و امکان ذخیره جداول لیستوفر بصورت فایل اکسل یا فایل متنی.
::  امکان تولید لیستوفرهای دقیق برای هر طبقه بصورت مجزا بهمراه لیست خرید میلگردها.
::  امکان استفاده از وصله همپوشانی، وصله مکانیکی ویا  جوش نوک به نوک برای میلگردهای ستونها.
::  امکان استفاده از سه روش مختلف برای تعیین محل  وصله آرماتورهای سراسری تیرها.
::  خواندن اتوماتیک کلیه مقاطع تیرها، ستونها و دیوارهای برشی از فایل سازه و عدم نیاز به ساخت و یا اختصاص مجدد آنها.
::  امکان تعریف بسیار راحت مقاطع جدید و یا ویرایش خصوصیات مقاطع موجود از قبیل فولادهای طولی و عرضی.
::  امکان تعیین تعداد سنجاقی علاوه بر خاموت بسته در مقاطع تیری بمنظور افزایش تعداد ساقها در طرحی فولاد عرضی.
::  امکان تعریف و تعیین تعداد آرماتورهای گونه در وجوه عمودی مقاطع تیری.
::  امکان استفاده از سنجاقی ویا خاموت لوزی برای ستونهای چهارگوش و خاموت دایره ای و اسپیرال برای ستونها دایروی.
::  امکان انتخاب بسیار راحت المانها و اختصاص مقاطع به آنها و یا مشاهده خصوصیاتشان توسط ماوس.
::  امکان درنظر گرفتن فولادهای پیچشی در محاسبات طراحی جزئیات آرماتوربندی طولی و عرضی تیرها به انتخاب کاربر.
::  امکان تولید اتوماتیک سکشن های پیچشی برای تیرهایی که نیاز به آرماتورهای پیچشی دارند.
::  تعریف خودکار آرماتور گونه برای سکشن پیچشی تیرها براساس درصدی از آرماتور پیچشی حدقل مقطع تیر.
::  امکان انتخاب سه روش مختلف برای توزیع میلگردهای پیچشی در مقاطع تیری.
::  ترسیم کلیه جزئیات آرماتوربندی تیرها شامل ابعاد تیر میلگردهای تقویت و خاموتها در پلان سازه بشکلی بسیار ساده و کارآمد.
::  تریم واکستند اتوماتیک تیرها در پلان و ترسیم نقشه های بسیار با کیفیت با کمترین نیاز به ویرایش.
::  لیبلینگ بسیار هوشمند میلگردهای تقویتی در پلان با کمترین احتیاج به ویرایش.
::  ترسیم پروفیل طولی یا همان نمای جانبی تیرها و جزئیات آرماتوربندی و پلانهای مربوط به آنها بصورت خودکار.
::  ترسیم هوشمندانه مقاطع عرضی تیرها با تمامی جزییات شامل چیدمان میلگردهای سراسری و تقویت بصورت خودکار.
::  امکان انتخاب چهار روش مختلف برای تعیین محل مقطع زدن در ترسیم خودکار مقاطع عرضی تیرها.
::  امکان حذف یا اضافه نمودن پروفیلهای طولی تیرها بصورتی بسیار ساده و با کلیک ماوس روی تیرها در محیط گرافیکی نرم افزار.
::  امکان مرتب سازی پروفیلهای طولی تیرهای و لیبلینگ آنها بصورت دلخواه در نرم افزار.
::  تشخیص خودکار تیرهای فرعی یک تیر و ترسیم خاموت ویژه در طرفین تیر فرعی در پروفیل طولی تیرها.
::  تشخیص اختلاف ارتفاع تیرها در یک پروفایل و ترسیم جزییات مربوطه در پروفیل طولی تیرها.
::  ترسیم کلیه جزئیات آرماتوربندی تیرها شامل تیپ و ابعاد تیر، جزئیات میلگردهای تقویتی و خاموتها روی پلان سازه.
::  محاسبه خودکار طول وصله و طولهای مهاری میلگردها، منطبق بر روابط آیین نامه و یا براساس ضرایب تعریف شده توسط کاربر.
::  خواندن خودکار مقاطع دیوارهای برشی ترسیم شده در
Section Designer با اشکال مختلف و نیز امکان Export کردن آنها به AutoCAD.
::  امکان تعریف آرماتورگذاریهای خاص و پیچیده برای مقاطع دیوارهای برشی در نرم افزار ایتبس.
::  طراحی جزئیات آرماتوربندی دیوارهای برشی و نیز امکان ویرایش جزئیات محاسبه شده توسط کاربر.
::  مشخص نمودن نواحی مرزی دیوارها و نیز ترسیم سنجاقیهای مهارکننده میلگردهای طولی دیوار در نواحی مرزی.
::  امکان خم کردن هندلی میلگردهای افقی دیوار بمنظور مهار شدن میلگرد افقی در هسته المان مرزی دیوار.
::  ترسیم جزئیات مقاطع دیوارهای برشی با آرماتوربندیهای خاص میلگردهای طولی و برشی در کنار پروفیل ارتفاعی دیوار.
::  کاهش هوشمندانه فاصله بین میلگردهای عمودی دیوار در نواحی مرزی در صورتیکه فاصله بین آنها بیشتر از 20
سانتیمتر باشد.
::  امکان ترسیم خودکار خاموت بسته پیرامون میلگردهای درون ناحیه مرزی و امتداد آنها بداخل ستون کناری درصورت انتخاب کاربر.
::  ترسیم پروفیل ارتفاعی و جزئیات آرماتوربندی دیوارهای برشی در ساختمانهای فلزی.
::  ترسیم پلان تیر ریزی بدون جزئیات و نیز ترسیم آکس بندی ساختمانهای فلزی.
::  تیپ بندی اتوماتیک ستونها براساس مقطع ستون، آرماتور برشی و کدهای ارتفاعی.
::  ترسیم پروفیل ارتفاعی ستونها، مقاطع ستون و پلان ستونگذاری ستونها.
::  امکان ترسیم پلان موقعیت کوچک در زیر پروفیل ارتفاعی هر یک از تیپ ستونها.
::  قابلیت ترسیم هر نوع ستون با اشکال مستطیلی یا دایروی با تنگهای مارپیچ .
::  قابلیت ترسیم ستونهایی که دارای ترازهای ارتفاعی ابتدایی یا انتهایی متفاوت هستند.
::  قابلیت تعیین محل وصله میلگردهای طولی ستونها در پایین و یا در وسط ارتفاع ستون.
::  قابلیت تعیین وجود و یا عدم وجود وصله میلگردهای طولی در ستونهای طبقه اول سازه.
::  قابلیت شناسایی ستونهایی که در تراز طبقه دارای اتصال تیری نمیباشند بمنظور اصلاح طول ناحیه بحرانی.
::  تیپ بندی جداگانه ستونهایی که تیرهای نیم طبقه به آنهای متصل شده است و درج کد ارتفاعی تیرهای نیم طبقه در پروفیل طولی ستونها.
::  در نظر گرفتن خاموت ویژه برای ستونهایی که تیرهای نیم طبقه به آنهای متصل شده است.
::  امکان انتخاب زاویه خم سنجاقیهای ستونها توسط کاربر.
::  نمایش بارگذاریهای اعمال شده به سقفهای سازه با فرمتی بسیار کاربردی و قابل کنترل در محیط گرافیکی نرم افزار.
::  قابلیت چاپ مستقیم لایه های مختلف سازه بهمراه اطلاعات موردنیاز کاربر با کیفیتی بسیار عالی.
::  ارائه گزارشهای متنوع قابل چاپ ازجمله وزن فولاد و حجم بتن، به تفکیک طبقات، نوع المانها ونیز سایز میلگردهای مصرفی.
::  امکان ویرایش بسیار راحت نتایج محاسبات جزئیات آرماتوربندی در نرم‌افزار.
::  قابلیت
Export کردن و ذخیره کلیه نتایج، جزئیات و حتی خروجیهای خام طراحی سازه بصورت تصویر و یا فایل ترسیمات AutoCAD.
::
 Export کردن بسیار سریع کلیه نقشه‌های ترسیم شده به AutoCAD تنها در کسری از ثانیه.
::  دارا بودن ابزارهای مفید محاسباتی.
::  . . .

  Back to Top Menu


 

ETABS MATE Icon

دریافت کاتالوگ و نمونه نقشه های ترسیم شده توسط نرم افزار
ETABS MATE
Concrete Structure Assistant 

CAD دریافت نمونه نقشه اجرایی سازه ترسیم شده بوسیله نرم افزار  ETABS MATE

     این فایل اتوکد نمونه شامل نقشه های اجرایی یک سازه بتنی
میباشد که توسط نرم افزار
    بدون هیچگونه ویرایشی ایجاد شده است و شامل ترسیمات زیر میباشد:

1. پلان موقعیت و تیپ بندی ستونها و دیوارهای برشیETABS MATE - Beam Icon
2. پلانهای مقاطع و ابعاد تیرها در تمامی ترازها
3. پلانهای جزئیات آرماتورهای تقویت تیرها در تمامی ترازها
4. پلانهای جزئیات خاموتهای تیرها در تمامی طبقات
5. جزئیات مقاطع تیرهای بتنی
6. پروفیل ارتفاعی و مقاطع ستونها
7. مقاطع عرضی ستونها
8. پلان موقعیت پروفیلهای طولی تیری
9. نقشه اجرایی پروفیل طولی تیرها
10. پروفیل طولی بهمراه مقاطع عرضی دیوارهای برشی
11. جداول لیستوفر میلگردهای مصرفی پروژه

 زمان ترسیم کلیه نقشه های اجرایی: 1 ثانیه
زمان ترسیم برای این نقشه ها شامل تمامی موارد بالا توسط نرم افزار، کمتر از یک ثانیه میباشد.
 

    Download   AutocCAD Demo Sample 1.DWG     CAD   size: 2.6 MB


دانلود برخی نقشه های انتخاب شده حالتهای خاص نشاندهنده قابلیتهای نرم افزار با فرمت PDF:

  Download   Special Case Drawing Samples.PDF     size: 1.8 MB


 

 
 


ۀ
 

ETABS MATE icon

 آشنایی با نحوه کار نرم افزار
ETABS MATE Concrete Structure Assistant   

کل فرآیند طراحی جزئیات آرماتوربندی سازه های بتنی و ترسیم نقشه های اجرایی ساختمان در نرم افزار ETABS MATE تنها در چهار گام ساده زیر انجام خواهد گرفت:

Export یا صادر کردن فایلهای مدل از نرم افزار ETABS

1

Import یا وارد کردن کردن فایلهای مدل به نرم افزار ETABS MATE

2

تنظیم پارامترهای طراحی در صورت لزوم و صدور فرمان طراحی

3

کنترل نتایج طراحی و ترسیم نقشه های اجرایی سازه

4

جهت شروع سریع نرم افزار و آشنایی بیشتر با چهار گام بالا فایل، Quick Start نرم افزار با فرمت PDF را توسط لینک زیر دریافت و مطالعه فرمایید.
 


 


ETABS MATE

تصاویری از نرم افزار ETABS MATE

Concrete Structure Assistant Software

 برای آشنایی بیشتر با محیط گرافیکی و قابلیتهای نرم افزار، تصاویری از قسمتهای مختلف نرم افزار ETABS MATE در زیر آورده شده است:
 

::

نمای کلی از محیط گرافیکی و منوهای نرم افزار:

 محیط گرافیکی زیبای نرم افزار با طراحی User Friend این امکان را میدهد که کاربران براحتی، سرعت و با کنترل کافی، فرایند طراحی جزئیات و ترسیم نقشه ها را به انجام برسانند.

 ترسیم بسیار کاربردی دیاگرامهای فولاد خمشی، فولاد عرضی برشی، فولاد طولی و عرضی پیچشی و فولاد افزوده تیرها در محیط گرافیکی نرم افزار.

::

رابط کاربری نمایش دقیق جزییات دیاگرامهای فولاد خمشی، فولاد برشی، فولاد پیچشی و فولاد افزوده تیرها

::

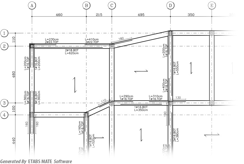
نمونه جزئیات پروفیل طولی تیرهای ترسیم شده توسط نرم افزار:

ETABS MATE نمونه ترسیم پروفیل طولی تیرها
 

نمونه ای از ترسیمات میلگردهای تقویتی تیرها در پلان ترسیم شده توسط نرم افزار:

Beam Additional Rebar Detailing by ETABS MATE software
 

::

نمونه جزئیات ستونهای ترسیم شده توسط نرم افزار:

ETABS MATE نمونه ترسیمات ستونها
 

::

نمونه جزئیات دیوار برشی بهمراه لیستوفر ترسیم شده توسط نرم افزار:

ETABS MATE نمونه ترسیمات دیوارهای برشی
 

::

کلیه اطلاعات مربوط به دیوارهای برشی بسادگی در پلان قابل مشاهده میباشد:

ETABS MATE نمایش جزییات دیوارهای برشی در نرم افزار
 

::

از طریق پانل Layer Display میتوانید اطلاعات مفید سازه ای را بشکلی بسیار کاربردی درمحیط گرافیکی اصلی نرم افزار بصورت زیر مشاهده نمایید:

::   بعنوان مثال با انتخاب لایه Flexural Reinforcing Area مساحت فولاد مورد نیاز تیرها بصورت زیر نمایش داده خواهد شد

ETABS MATE نمایش فولاد خمشی تیرها در نرم افزار

::  با انتخاب لایه Total Beam Details جزئیات میلگردهای تقویتی و تیپ تیرها بصورت زیر نمایش داده خواهد شد

ETABS MATE نمایش میلگردهای تقویتی تیرها در نرم افزار

::  با انتخاب لایه Shear - Torsion Ties جزئیات برشی-پیچشی تیرها بهمراه خاموتهای محاسبه شده آنها بصورت زیر نمایش داده خواهد شد

ETABS MATE نمایش خاموت تیرها در نرم افزار

::  با انتخاب لایه Floor Loading Details کلیه بارهای سطحی اعمال شده به هریک از کفها بصورت زیر نمایش داده خواهد شد

ETABS MATE نمایش بارگذاری سقفها در نرم افزار

::  با انتخاب لایه Floor - Deck Rib Details مشخصات کفها و نیز وضعیت ریبهای آنها بصورت زیر نمایش داده خواهد شد

ETABS MATE نمایش ریبهای سقف تیرچه بلوک در نرم افزار

::  با انتخاب لایه Column Type - Section جزئیات طراحی ستونها بصورت زیر نمایش داده خواهد شد

ETABS MATE نمایش مشخصات طراحی ستونها در نرم افزار

::  با انتخاب لایه Wall - Pier Information اطلاعات مفیدی از دیوارهای برشی سازه بصورت زیر نمایش داده خواهد شد

ETABS MATE نمایش جئیات طراحی دیوارهای برشی در نرم افزار

::

 با کلیک روی هر دیوار کلیه اطلاعات مربوط به دیوار برشی انتخاب شده در تمامی طبقات مشاهده میگردد که این اطلاعات قابل ویرایش میباشند:

ETABS MATE ویرایش جزییات طراحی و ترسیم دیوارهای برشی
 

::

تصویری از نحوه تعیین مشخصات مقاطع تیرهای بتنی و میلگردهای خمشی و برشی آنها:

ETABS MATE تعریف جزییات مقاطع تیری در نرم افزار
 

::

نمونه جزئیات میلگرد گذاری طراحی شده توسط نرم افزار (در محیط گرافیکی نرم افزار) :

کلیه جزئیات محاسبه شده توسط نرم افزار همانگونه که در تصویر زیر مشاهده میگردد بصورتی کاربردی در محیط گرافیکی نرم افزار قابل مشاهده خواهد بود تا مهندس محاسب بتواند قبل از تولید نقشه ها تغییرات لازم را مطابق نظر خود اعمال نماید و سپس نقشه های اجرایی تولید گردند.

ETABS MATE نمایش میلگردهای تقویتی تیرها در نرم افزار

::

کلیه جزئیات میلگرد گذاری طراحی شده توسط نرم افزار، توسط کاربر نیز از طریق راست کلیک کردن روی المان و پنجره ارتباطی زیر قابل ویرایش میباشد:

ETABS MATE ویرایش میلگردهای تقویتی تیرها در نرم افزار

مشاهد نسبت برش چشمه اتصال محاسبه شده توسط ایتبس میت براساس آرماتورهای دیتیلینگ در لایه Joint Shear Information :

ETABS MATE - Joint Shear Details

نمایش جزییات محاسباتی برش چشمه اتصال با کلیک روی هر ستون:

ETABS MATE - Joint ShearCalculations Details

مشاهد طول گیرایی میلگردهای قلابدار محاسبه شده توسط ایتبس میت در لایه Ldh of Beam Hooked Rebar :

ETABS MATE - Ldh of Beam Reinforcements Details

نمایش جزییات محاسباتی طول گیرداری میلگردهای قلابدار تیرها با کلیک روی هر تیر در لایهLdh of Beam Hooked Rebar :

ETABS MATE - Ldh Calculation Details

::

نرم افزار گزارشی قابل چاپ و یا ذخیره بصورت متنی از مقادیر فولاد و بتن مصرفی شده در سازه را بصورت زیر ارائه میدهد:

ETABS MATE  گزارش حجم بتن و وزن میلگردها در نرم افزار
 

::

ارائه لیستوفرهای دقیق در کنار نقشه های اجرایی و قابل اکسپورت بصورت فایل متنی یا فایل اکسل

ETABS MATE - Listofer Generated

 


ETABS MATE Icon

 دانلود نرم افزار ETABS MATE

Concrete Structures Detailing Software

     پس از دانلود نرم افزار ETABS MATE و نصب آن برروی کامپیوتر مورد نظر، نسخه آزمایشی نرم افزار بروی کامپیوتر شما فعال خواهد شد. در این حالت میتوانید قابلیتهای نرم افزار را توسط باز کردن فایل Demo Sample مشاهده نمایید و به ارزیابی عملکرد قسمتهای مختلف نرم افزار بپردازید. در صورت رضایت از عملکرد نرم افزار و تمایل به فعالسازی کلیه توابع و تبدیل آن به نسخه کامل، میبایست نرم افزار خود را رجیستر نمایید. برای دریافت فایل نصب نرم افزار از لینک زیر استفاده نمایید.

ETABS MATE Concrete Detailing software

Software Compatibility:
    ETABS MATE Compatible to all windows version
      XP / Vista / 7 / 8 / 10
      32 and 64 Bit



  ETABS MATE Awards

ETABS MATE Clean
 

 Free Download ETABS MATE ver 1.3.510 Evaluation by below link

 

 


  Back to Top Menu

 


نرم افزار قدرتمند ترسیم نقشه اجرایی سازه بتنی ETABS MATE

ترسیم موفق نقشه های اجرایی هزاران سازه بسیار بزرگ، متوسط و کوچک

FARASA Engineering Group Logo

 

 

GooglePlus
FaceBook
 

FARASA Engineering Group Logo


      FARASAEG.ir is a registered trademark of FARASA Engineering Group.
  
   © 2012 - 2026 FARASA Engineering Group.   All rights reserved.

Official Instagram Page
instagram.com/etabsmate
#etabsmate
Official Telegram Channel
telegram.me/etabsmate
@etabsmate

 


کلیه حقوق مطالب و فایلهای ارائه شده در این سایت برای گروه مهندسین فراسا محفوظ میباشد و تنها با ذکر منبع مجاز میباشد.