Home  | ETABS MATE  | FOUNDA MATE  | Download Center  | Buy Software  | Software Activation  | Other Software  | Search  | Contacts  | فارسی

 



 

   Contents:

 Introduction to ETABS MATE

  Download Drawings Sample

   Download Software Catalogue

  How to Use the ETABS MATE

   Download ETABS MATE Quick Start

  Images of ETABS MATE Software

   Download ETABS MATE Trial Software

   Buy Activation Code for Software

  Request Form for Activation Code  

  User Comments About ETABS MATE

 

 
ETABS MATE Icon

ETABS MATE Software
Concrete Structure Detailing Software

» Compatible with
ETABS 9, 13, 15, 16,  17, 18, 19, 20, 21, 22

ETABS MATE

ETABS MATE سازگاری با تمام نسخه های ایتبسETABS MATE
Professional Concrete Structure Detailer Software

This software is a powerful and very quick tool for automatically design and draw reinforcement details of concrete structures in a developed, simple and easy graphical interface in according to building model design results of ETABS software.
In this software you can preview your structure model in the graphical user interfaces, design reinforcement details and then generate structural drawings of your projects in few seconds. Also you can generate structural drawings of your model according to envelop of any number of design files. software can save prepared structural drawings in the AutoCAD drawings file format. Some of the output of the software is given below.
In addition ETABS MATE can prepare several kinds of reports such as structural material list according to element type or story sequence and other useful reports.


 

Column Details Drawing Sample

Beam Details Drawing Sample

Shear Wall Details Drawing Sample

 

Software Features and Capabilities
ETABS MATE
Concrete Structure Detailing Software

  Incredibly high speed in the design of reinforcement details and preparation of structural drawings.
Less than one second required for detailing a building with an area of 5000 m2

 Successful in importing the model of very large structures and producing their structural drawings.
Detailing of a large number of concrete structures with an area of ​​over one hundred thousand square meters has been designed successfully in ETABS MATE as well as thousands of small to medium projects.

 Compatible with all versions of ETABS Software (ETABS 9, 13, 15, 16, 17, 18, 19, 20, 21, 22)

 Generating structural drawings in a very professional way in the format of an editable file and compatible with all versions of AutoCAD.

 A convenient procedure for importing the model of structure from ETABS into ETABS MATE.

 The ability to use variety of exported files of ETABS such as e2k, $et, RTF, TXT, MDB, ACCDB, XML files for transferring structure to ETABS MATE.

 Having an advanced and convenient graphical interface as well as user-friendly menus and toolbars according to the needs of structural engineers.

 The capability of enveloping output files of the various design data of a structural model, without any restrictions in the numbers of files.

 Desirable interaction between the user and different parts of the software during all stages of detailing.

 Equipped with unique, powerful, and very fast internal drawing engines without any dependency on other software.

 Presenting structural drawings regarding all of the principles of professional drawing, which makes it very easy to edit and print professionally.

 The ability to preview details of beams, columns, and shear walls in a very convenient way in the graphical interface of software.

 The ability to select the type of frame to configure the relevant parameters.

 The ability to view floor loads on the plan in a very practical format to prevent loading errors.

 Calculation of lay splice length of bars automatically or by user-defined factors.

 Calculation of the rebar weight, the volume of concrete and generate rebar schedule table with position number of bars.

 The ability to generate accurate rebar schedules according to different elements or rebar properties such as type, shape, and size of rebar.

 The ability to save rebar schedules tables data in the format of Excel or Text Document.

 The ability to generate accurate rebar list tables for each floor separately as well as the capability to prepare rebar purchase lists.

 The ability to select different methods of reinforcement splicing such as overlap splices, mechanical connectors, and welded splices.

 The ability to select three different methods to determine the location of reinforcement splicing for longitudinal bars of beams.

 The ability to read all defined section of beams, columns, and shear walls from the ETABS file automatically without any need to redefine sections.

 The ability to define new section and edit properties of existing sections such as longitudinal, face and transverse reinforcement.

 The ability to determine the number of Shear Legs in the beam sections for transverse steel design requirements.

 The ability to define and determine the number of side face reinforcement in the web of the beam.

 The ability to use different column tie types such as diamond ties or Rectangular and  tiepins for rectangular columns.

 The ability to use different column tie types such as circular or spiral ties for circular columns.

 The ability to consider torsional rebars during the design calculations of longitudinal and transverse reinforcement of beams based on the user's choice.

 The ability to select two different methods for distribution of torsional reinforcement in beam profiles.

 Providing efficient drawings of all details of beam reinforcement, including the dimensions, additional rebars, and stirrups in the plan of the structure.

 Automatic trimming and extending of the beams in the structural drawing plans and provide high quality drawings with the minimal need for editing.

 Making smart labels for additional reinforcement in the structural drawing plans with the minimal need for editing.

 The ability to display entire reinforcing details of beams on drawings of longitudinal profiles and relevant structural plans automatically.

 The ability to remove or add longitudinal profiles of beams quickly just by pressing one click on the beams in the main interface of the software.

 The ability to sort longitudinal profiles of beams and label them desirably.

 Automatic detection of the place of linkage between secondary beams and primary beams to apply specified stirrups around the connection point.

 The ability to recognize the difference between depths of two beams in their connection point and draw the relevant details in the longitudinal profiles.

 The ability to draw all details of reinforced beams such as type, dimension, additional reinforcement, and stirrups on structure plan.

 Automatic calculation of splice or development length of rebars based on code requirements or user-defined factors.

 Automatic reading all sections of shear walls, drawn in "Section Designer", as well as the possibility to export them to AutoCAD.

 The ability to define specific and complicated reinforcement for shear walls.

 The ability to design the details of shear walls as well as the possibility to edit them according to user calculations.

 Drawing the details of all sections of shear walls with specified reinforcement in vertical and horizontal rebars, also the elevation view of the shear wall.

 Smartly reduce the space between the vertical bars of shear walls in the boundary elements if it is more than 20 cm.

 The ability to automatically draw closed tie around rebars inside the boundary elements of shear walls and extend them into the nearby column.

 Drawing shear wall profile and reinforcement details of it in steel frame structures.

 Automatically categorizing columns based on column cross-section, shear reinforcement, and connections.

 Drawing the profile of columns, column cross-sections, and column plans.

 The ability to draw columns with a rectangular or circular cross-section with hoop or spiral confinement.

 The ability to draw columns with different initial or final levels compared to other columns.

 The ability to determine the splice position of longitudinal rebars of columns at the bottom or in the middle of the column height.

 The ability to distinguish columns that have no connection to any beam at floor level to correct the length of L0 of column.

 The ability to select the bend angle of hooks or crossties based on the user's choice.

 The ability to displaying the loads applied to the floors in a practical and controllable format in the main interface of the software.

 The ability to print directly different layers with required information of the structure with excellent quality.

 Providing a variety of printable reports, including steel weight and concrete volume, according to the desired floor, type of elements, and size of rebars.

 The ability to change and edit easily the results of reinforcement details in the software.

 The ability to export and save all results, details, and even raw outputs of structural designs in the format of an image or AutoCAD file.

 The ability to export all structural drawings as an editable AutoCAD file for less than a second.

 Having useful and necessary computational tools for detailing.

 All reinforcing design parameters are configurable in the software.
 


ETABS MATE Icon

Download Drawings Sample Generated By
ETABS MATE
Concrete Structure Assistant 

This file is content of Structural drawings of a four story building with area of 4000 m2 that exported by ETABS MATE software in AutoCAD drawings file format.


Drawing sample
file include:
 

 
  1. Typical Columns and Shear Walls Location Plan
 
  2. Beam Type and Beam Section Plans
 
  3. Beam Additional Reinforcing Details Plans
 
  4. Beam Ties Reinforcing Details Plans
 
  5. Beam Sections Details
  
 6. Column Longitudinal Profile Details
  
 7. Column Sections Details
  
 8. Shear Wall Longitudinal Profile and Section Details
  
 9. Typical Beam Profile Location Plans
  
 10. Beam Longitudinal Profile Details
  
 11.
Rebar Shape, Size and Weight Details Tables

Drawing Time:  2 second

File Format:
   
AutoCAD Drawings DWG file format

 

  Back to Top Menu

ETABS MATE Icon

Download ETABS MATE Catalogue
Concrete Structure Assistant Software

ETABS MATE Catalogue


Description:
   Catalogue of the ETABS MATE Software

Languages:

   English
 

File Format:
   
PDF (Adobe Acrobat file format)

Download Software Catalogue by the following Link:

 

  Back to Top Menu

ۀ

How to Use the ETABS MATE
Concrete Structure Assistant Software  
 

The whole process of concrete reinforcement detail design and generating structural drawings by ETABS MATE will be carried out in just four simple following steps:

Generate model text file and save design results file of Structure by ETABS.

Import prepared above files to the ETABS MATE.

Adjust design parameters if necessary and then click on the reinforcement design button

Control software structural reinforcement design and then click on the generate structural drawings buttons.

 

To get more information about these four steps you can download ETABS MATE Quick Start article by the following links.

 

ETABS MATE Quick Start
 
Languages: English

File Format:   PDF (Adobe Acrobat file format)

 

  Download ETABS MATE Quick Start      size: 2.9 MB   Language: English



 


Screen shots of ETABS MATE
Concrete Structure Assistant Software

To inform more about graphical user interfaces (GUI) and functionality of the software, screenshots from different parts of the software is given below :

 Screen shot of the main software window:  

ETABS MATE Software Snapshot
 

Very practical drawing of diagrams of bending steel, transverse shear steel, longitudinal and transverse torsional steel and added steel area of beams in the graphic environment of the software.

Details of the beam longitudinal profiles generated by software:


 

Details of the columns generated by software:


 

Structural drawing of shear walls generated by software:


 

All information related to the shear walls is easily visible in plan:


 

By click on any wall, all information related to the selected shear walls in the all stories has been observed that this information is editable as seen on the below image:

ETABS MATE ویرایش جزییات طراحی و ترسیم دیوارهای برشی
 

Image of  how to assign longitudinal and shear reinforcement of the beam sections:

ETABS MATE تعریف جزییات مقاطع تیری در نرم افزار
 

Image of designed beam additional reinforcement details in the graphical area of software:

ETABS MATE نمایش میلگردهای تقویتی تیرها در نرم افزار
 

All reinforcement details that designed by software can be edited by the user via right-clicking on the element and the following communication window :

ETABS MATE ویرایش میلگردهای تقویتی تیرها در نرم افزار
 

Functional User Interface for Displaying Detailed Diagrams of Bending Steel, Shear Steel, Torsional Steel and Additional Steel Area of beams.


 

Software can provides several reports of reinforcement weight and concrete volume of structure according to element types, rebar size and story number.

ETABS MATE  گزارش حجم بتن و وزن میلگردها در نرم افزار
 

You can view several useful details by using Layer Display Panel as below

:: Flexural Reinforcing Area

ETABS MATE نمایش فولاد خمشی تیرها در نرم افزار

:: Total Beam Details

ETABS MATE نمایش میلگردهای تقویتی تیرها در نرم افزار

:: Shear - Torsion Reinforcements

ETABS MATE نمایش خاموت تیرها در نرم افزار

:: Floor Loading Details

ETABS MATE نمایش بارگذاری سقفها در نرم افزار

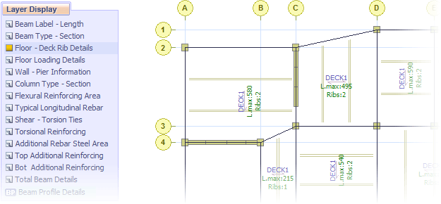
:: Floor - Deck Rib Details

ETABS MATE نمایش ریبهای سقف تیرچه بلوک در نرم افزار

::Column Type - Section

ETABS MATE نمایش مشخصات طراحی ستونها در نرم افزار

:: Wall - Pier Information

ETABS MATE نمایش جئیات طراحی دیوارهای برشی در نرم افزار

 

Software can provides Rebar Schedules according to element types, rebar size and story number.

ETABS MATE - Listofer Generated

 


Download ETABS MATE

Evaluation Trial Version of Software

Please download ETABS MATE evaluation trial version by the following links and then install software on the desired computer. In this case software will be activated in the trial mode on your computer. In the trial mode, you can see the features and abilities of the software by opening the "Demo Sample" from file menu, and you can evaluate the program performance of different parts of the software.
In the case of satisfaction with application performance and want to activate all functions and turn it into a full version, you must register your software. you can register your copy of software be 'Software Registration' link in the site top menu.
To download the installation software file, please click on the following link below.

ETABS MATE software CD Box

Software Compatibility:
   
      XP / Vista / 7 / 8 / 10
      32 and 64 Bit



 


 

 

 

 

  FARASA Engineering Group Logo

    farasaeg.ir is a registered trademark of FARASA Engineering Group.
 
  © 2012-2026 FARASA Engineering Group. All Rights Reserved.

 


All rights of  the file and document in this site is reserved for FARASA Engineering Group